Property
Beds
2
Full Baths
2
1/2 Baths
None
Year Built
1974
Sq.Footage
1,260
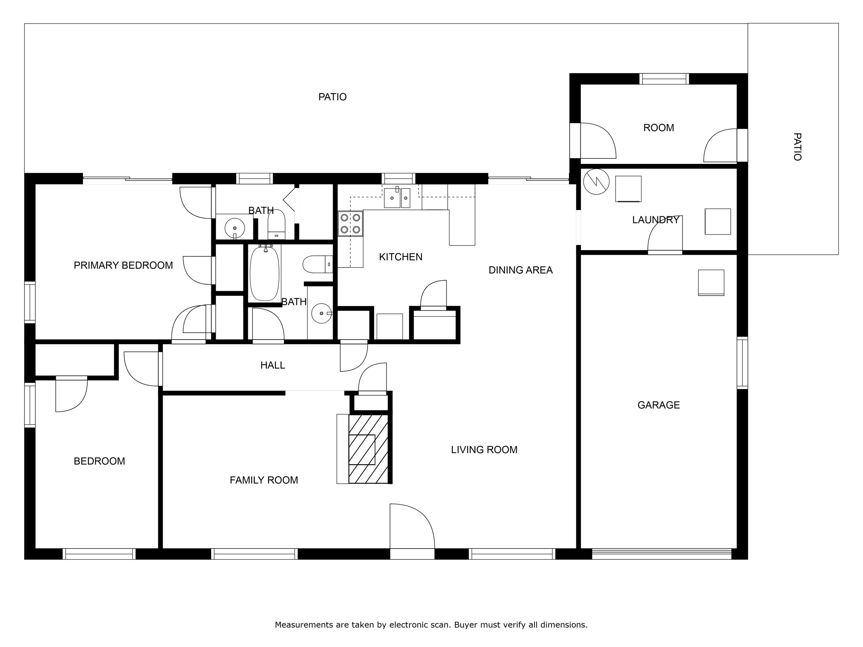
Holiday Isle Lot with two wide large Boat Slips. House sold AS-IS and docks need upgrade. Perfect location for anyone looking to build their dream home across from the beach, with boat slips, fast access to the Gulf, and beautiful views in all directions, including the Gulf, Harbor, and Canals. One of, if not currently the only, re-buildable lots available with large slips.
Features & Amenities
Interior
-
Total Bedrooms
2
-
Bathrooms
2
-
Cooling YN
YES
-
Cooling
Central Air
-
Heating YN
YES
-
Heating
Electric, Central
-
Pet friendly
N/A
Exterior
-
Garage
Yes
-
Garage spaces
1
-
Other Exterior Features
Boat Slip
-
Parking
Attached
-
Patio and Porch Features
Patio
-
Pool
No
-
Waterfront YN
YES
-
View
Canal, Water
Area & Lot
-
Lot Size(acres)
0.25
-
Property Type
Residential
-
Property Sub Type
Single Family Residence
-
Architectural Style
Ranch
Price
-
Sales Price
$1,900,000
-
Zoning
Resid Single Family
-
Sq. Footage
1, 260
-
Price/SqFt
$1,507
HOA
-
Association
YES
-
Association Fee
$243
-
Association Fee Frequency
Annually
-
Association Fee Includes
N/A
School District
-
Elementary School
Destin
-
Middle School
Destin
-
High School
Destin
Property Features
-
Stories
1
-
Sewer
Public Sewer
Schedule a Showing
Showing scheduled successfully.
Mortgage calculator
Estimate your monthly mortgage payment, including the principal and interest, property taxes, and HOA. Adjust the values to generate a more accurate rate.
Your payment
Principal and Interest:
$
Property taxes:
$
HOA fees:
$
Total loan payment:
$
Total interest amount:
$
Location
County
Okaloosa
Elementary School
Destin
Middle School
Destin
High School
Destin
Listing Courtesy of Michael A Catanese , Hooker Real Estate
RealHub Information is provided exclusively for consumers' personal, non-commercial use, and it may not be used for any purpose other than to identify prospective properties consumers may be interested in purchasing. All information deemed reliable but not guaranteed and should be independently verified. All properties are subject to prior sale, change or withdrawal. RealHub website owner shall not be responsible for any typographical errors, misinformation, misprints and shall be held totally harmless.

30A Luxury Group
EXP LUXURYGROUP 30A
Call EXP LUXURY today to schedule a private showing.

* Listings on this website come from the FMLS IDX Compilation and may be held by brokerage firms other than the owner of this website. The listing brokerage is identified in any listing details. Information is deemed reliable but is not guaranteed. If you believe any FMLS listing contains material that infringes your copyrighted work please click here to review our DMCA policy and learn how to submit a takedown request.© 2024 FMLS.
