105 York Lane B

Inlet Beach, FL 32461

Triplex

Inlet Beach, FL 32461

105 York Lane B

$850,000

MLS#: 998325

Status: Active

Listing provided by: Christies International Real Estate Emerald Coast

Listing agent phone: None

Last update: N/A

On site: 27 days ago

Prominence North - Residential

About

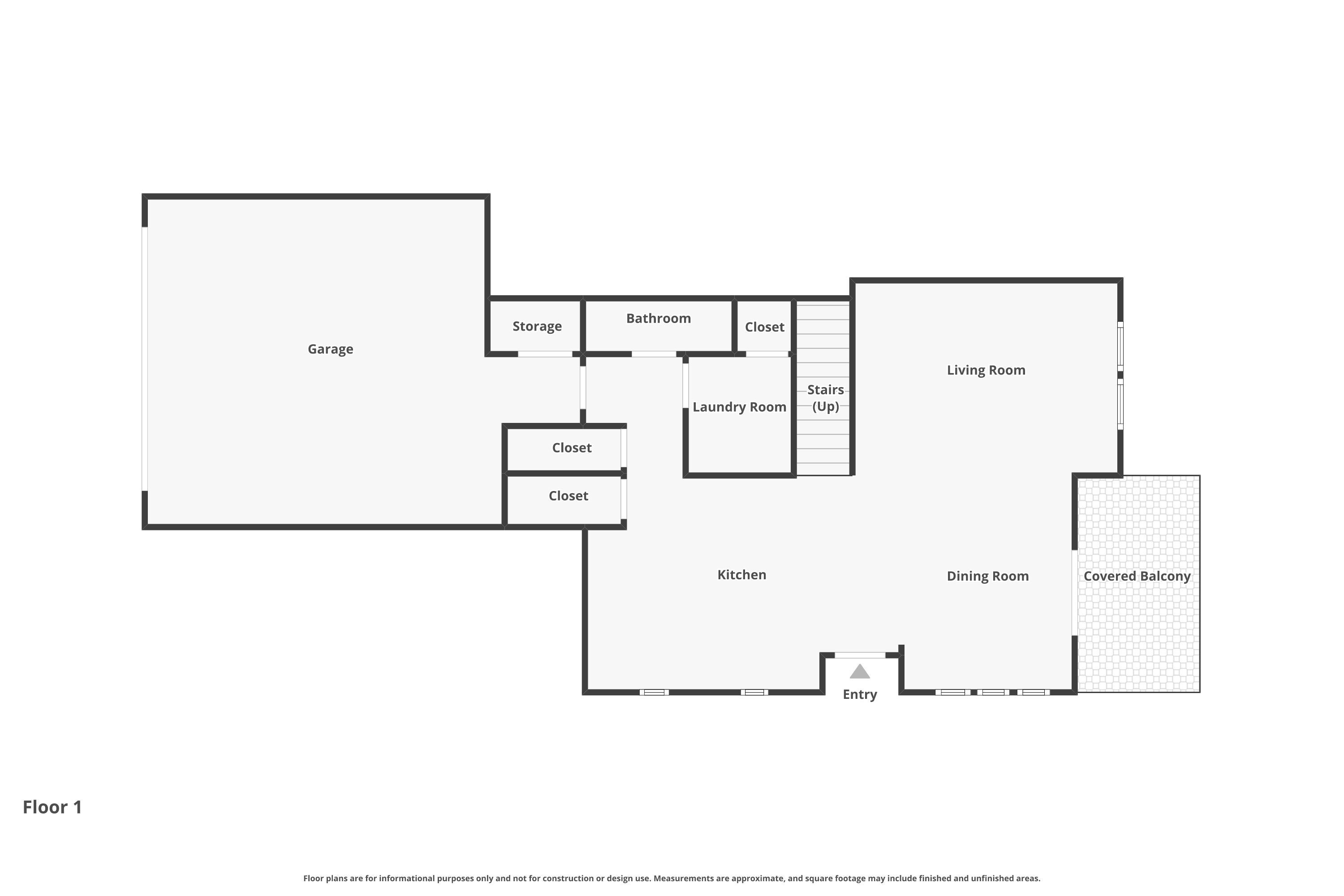
Turnkey Corner Unit | Furnished + Golf Cart Included | Prominence | Inlet Beach | 30A This rare corner end unit in Prominence offers one of the most private and light-filled settings in the community, with oversized windows on two sides flooding every level with natural light and Gulf breezes - a distinct advantage few properties in the neighborhood can match. On the main level, the open-concept living, dining, and kitchen areas flow seamlessly together, anchored by a massive granite island, full kitchen with stainless steel appliances, and direct access to a private patio. Upstairs, warm hardwood floors carry you into a spacious primary suite bathed in natural light, while two additional guest bedrooms with bunk beds and a full guest bath provide comfortable accommodations for family and friends. This property comes fully furnished and includes a golf cart -- making it completely turnkey for personal use or short-term rental on day one. Everything is in place for the 30A lifestyle from the moment you arrive. Step outside and you are at the center of it all. The white sand beaches of Inlet Beach and 30A are minutes away, with Deer Lake State Park offering its own stunning coastal beach access alongside rare coastal dune lake scenery. The Big Chill sits just across the street for upscale dining and shopping, while Rosemary Beach, Alys Beach, WaterSound Town Center, and Seaside are all easily accessible by bike or golf cart along Scenic 30A. Your own private beach home close to WaterSound, Alys Beach, Rosemary Beach, and Seaside -- this turnkey Prominence property delivers the full coastal Florida experience in one of the most sought-after corridors along the Emerald Coast. 3 BR | 2 BA | Corner Lot | Turnkey | Furnished | Golf Cart | STR | Prominence | Inlet Beach | 30A | Rosemary Beach | Alys Beach | WaterSound | Deer Lake State Park | Emerald Coast

Property

Beds

3

Full Baths

2

1/2 Baths

1

Year Built

2016

Sq.Footage

N/A

Features

Features & Amenities

Interior

  • Other Interior Features

    Crown Molding, Kitchen Island, Recessed Lighting

  • Total Bedrooms

    3

  • Bathrooms

    2

  • 1/2 Bathrooms

    1

  • Cooling YN

    YES

  • Cooling

    Central Air, Ceiling Fan(s), Electric

  • Heating YN

    YES

  • Heating

    Central, Natural Gas, Electric

  • Pet friendly

    N/A

Exterior

  • Garage

    Yes

  • Garage spaces

    2

  • Parking

    Garage

  • Patio and Porch Features

    Deck

  • Pool

    Yes

  • Pool Features

    Community

Area & Lot

  • Lot Features

    Corner Lot

  • Property Type

    Residential

  • Property Sub Type

    Townhouse

  • Architectural Style

    Triplex

Price

  • Sales Price

    $850,000

  • Tax Amount

    $6,907.44

  • Zoning

    Resid Multi-Family

  • Sq. Footage

    N/A

  • Price/SqFt

    N/A

HOA

  • Association

    YES

  • Association Fee Frequency

    N/A

  • Association Fee Includes

    N/A

School District

  • Elementary School

    Bay

  • Middle School

    Emerald Coast

  • High School

    South Walton

Property Features

  • Foundation Details

    Slab

  • Sewer

    Public Sewer

  • Water Source

    Public

Schedule

Schedule a Showing

Showing scheduled successfully.

What is 3 + 4 ?


Change time

Mortgage calculator

Estimate your monthly mortgage payment, including the principal and interest, property taxes, and HOA. Adjust the values to generate a more accurate rate.

Your payment

Principal and Interest:

$

Property taxes:

$

HOA fees:

$

Total loan payment:

$

Total interest amount:

$

Location

  • County

    Walton

  • Elementary School

    Bay

  • Middle School

    Emerald Coast

  • High School

    South Walton

Listing Courtesy of Delawalla Group , Christies International Real Estate Emerald Coast

RealHub Information is provided exclusively for consumers' personal, non-commercial use, and it may not be used for any purpose other than to identify prospective properties consumers may be interested in purchasing. All information deemed reliable but not guaranteed and should be independently verified. All properties are subject to prior sale, change or withdrawal. RealHub website owner shall not be responsible for any typographical errors, misinformation, misprints and shall be held totally harmless.

Agent EXP LUXURY GROUP 30A

EXP LUXURY GROUP 30A

30A Luxury Group

Call EXP LUXURY today to schedule a private showing.


* Listings on this website come from the FMLS IDX Compilation and may be held by brokerage firms other than the owner of this website. The listing brokerage is identified in any listing details. Information is deemed reliable but is not guaranteed. If you believe any FMLS listing contains material that infringes your copyrighted work please click here to review our DMCA policy and learn how to submit a takedown request.© 2024 FMLS.

Properties

Related properties

New on site 2 days ago
Welcome to refined coastal living in the highly sought-after Watersound Origins community.
Nestled in a serene section of the neighborhood with charming gravel pathways that lead to
community amenities, this beautifully designed and meticulously maintained Huff home offers
an abundance of privacy, natural light, a thoughtfully crafted open floor plan, and high-end
finishes throughout.
Featuring three spacious bedrooms with generous closets and three full baths, this home is
designed for both comfort and functionality. The inviting living, dining and bedroom areas are
enhanced by ten-foot ceilings, rich hardwood flooring, custom wood ceiling details, and shiplap
accents that create a warm yet elevated coastal aesthetic. At the heart of the home, the chef's
kitchen showcases Cambria quartz countertops and backsplash, along with a seamless flow into
the main living space--perfect for everyday living and effortless entertaining. The spacious
primary suite serves as a serene retreat, featuring a wood ceiling that adds warmth and a sense of
luxury and relation, complemented by a spa-like bath and ample closet space. Additional
highlights include a remodeled laundry room and a garage with built-in cabinetry for added
storage and organization.
Step outside to enjoy a beautifully designed outdoor living space featuring a serene screened
porch, an expanded paver patio, and a lushly landscaped yard--creating a private and inviting
setting ideal for relaxing or entertaining guests.
Watersound Origins is renowned for its picturesque surroundings, world-class amenities, and
unmatched sense of community. Residents enjoy access to a par-3 golf course, kayaking and
paddleboarding in Lake Powell, a resort-style pool, tennis and pickleball courts, a state-of-the-art
fitness center, scenic walking and biking trails, and a vibrant Village Commons with regular
community events. Just a short bike ride or drive to the pristine beaches of 30A and the Gulf of
Mexico, this location offers the perfect blend of tranquility, convenience, and coastal lifestyle.
This exceptional home presents a rare opportunity to own in one of the area's most desirable
communities--where luxury finishes, thoughtful design, and an unparalleled lifestyle come together seamlessly.
#1000432

Inlet Beach

27 Somersault Lane

3 Beds

3 Baths

1,974 Sq.Ft.

$975,000

MLS#: 1000432

New on site 4 days ago
Where Coastal Luxury Meets Effortless Living Near Rosemary Beach! This exceptional condominium is positioned just a two-minute walk from Rosemary Beach, 30Avenue which offers premier shopping, dining & entertainment. This 30A getaway can be the ideal family retreat as well as a top-producing investment property with rental income projections at nearly $72K and cash on cash return projections at 5.3% per year. Situated with a gorgeous view of the pool & lawn, Unit 335 offers two separate balconies and custom built-in bunk beds in the hallway. Spend quality time at the high-end amenities which include a resort-style pool, spa, fitness center, rooftop deck and on-site restaurant. The unit has been designed with a coastal feel and conveys fully-furnished. The primary bedroom is a dreamy escape with its private balcony and large primary bathroom. The living room is welcoming with its large sliding glass doors and light pouring in. The chef's kitchen showcases high-end appliances and crisp cabinetry. The guest bedroom has been beautifully designed with extra storage and a large ensuite bathroom. With affordable HOA dues, the return on investment for this property will be maximized. Explore this lovely sanctuary designed for relaxation along 30A!
#1000305

Inlet Beach

10941 E Co Highway 30A 335

2 Beds

2 Baths

1,220 Sq.Ft.

$725,000

MLS#: 1000305

New on site 4 days ago
Inlet Beach SOUTH OF 98!  Gulf views and fantastic beach access!  Biking distance to Rosemary Beach. Sold fully furnished. And yes--it's a corner unit! Welcome to Shoreline Townhouses Unit 4, a rare opportunity to own a coastal retreat that blends location, outdoor living, and comfort in one.
Being the corner unit means you get more than just the standard setup. Along with the two patios found in every townhouse, this home offers an additional open deck with partial cover--creating over 300 square feet of outdoor living space. Imagine grilling out, entertaining friends, or simply unwinding with the backdrop of Camp Helen State Park's rolling dunes.
Practicality is built in too. Covered parking easily fits one vehicle, with additional outdoor storage for all your beach gear. After a day on the sand or at nearby Phillips Inlet, rinse off in your private outdoor shower before heading inside. Phillips Inlet is a local favorite for launching kayaks, paddleboards, or even a small boat making adventure part of your everyday lifestyle.
Inside, the first floor welcomes you with a spacious living area and sliding glass doors leading to the covered patio. The kitchen is highlighted by granite countertops and direct access to the extended deck, creating a seamless indoor-outdoor flow that's perfect for entertaining. You'll also find a convenient laundry/half-bath combo tucked away on this level.
Upstairs, retreat to two private bedrooms, each with its own ensuite bath and walk-in closet. One of the bedrooms opens onto a second-floor deck where Gulf views greet you each morning.
What makes this spot truly special is its balance of seclusion and convenience. While you'll enjoy the peace and quiet of being tucked behind a state park, you're still just minutes away from Rosemary Beach and the excitement of 30A. Hop on a bike or golf cart to explore the area, or take the Inlet Beach Underpass to 30Avenue, where you'll find favorites like Idyll Hounds Proper, Amici, and a variety of boutique shops.
Shoreline Townhouses Unit 4 offers the best of both worlds close to everything, yet private and peaceful. Whether you're searching for a beach getaway, an investment property, or a full-time residence, this home delivers a coastal lifestyle that's hard to match.
#1000311

Inlet Beach

228 Walton Magnolia Lane UNIT 4

2 Beds

2 Baths

1,140 Sq.Ft.

$775,000

MLS#: 1000311

New on site 4 days ago
Location! Timeless elegance is found with this coastal chic 3 bedroom, 2.5 bath & 2-car garage Prominence townhome situated on a rare and prime lot with extra space between units and backing up to a protected preserve offering privacy and ease of access to the community pool, The Big Chill, State Park Trails and Watersound Beach Club. Strong rental potential of $70K-$80K a year, fully furnished, and turn-key ready makes it the obvious choice for those looking for investment opportunities, a full-time or vacation residence along 30A. Features include luxury evp flooring in the main space, granite countertops, subway tile backsplash, crown molding, stainless steel appliances, 8ft doors/10ft ceilings, gas stove, quartz countertops, shaker style cabinets, a chef's kitchen and large back patio. The "Bahamas/A Unit" floor plan offers an abundance of natural and bright light in the largest and most open space amongst the Prominence townhomes. A tranquil coastal retreat with gorgeous floor to ceiling details throughout featuring; designer fixtures and furnishings, stainless steel appliances, 8ft doors/10ft ceilings, gas stove, granite countertops, shaker style (soft open/close cabinets/drawers), a chef's kitchen with a large custom painted island that flows into the living and dining space complete with two sets of French-style like doors that open to the large patio space. Upstairs you will find the 3 spacious bedrooms; with the large primary bedroom including a luxurious ensuite bathroom and walk-in closet. Don't miss out on claiming your coastal paradise in Prominence with this popular coastal charmer - claim your paradise in Prominence today. 

Prominence is a community that blends coastal resort living with modern conveniences making it an essential community along South Walton's Scenic Highway 30A. Prominence offers low HOA fees and is centrally located along 30A next to Watersound Beach, between Seaside and Alys Beach. Residents and guests will enjoy access to two resort style pools (with one heated seasonally), The Big Chill, start park trails, bike paths, as well as premium shopping and dining and quick access to the gorgeous Deer Lake State park Beach access and rare coastal dune lake.
#1000309

Inlet Beach

40 E Milestone Drive A

3 Beds

2 Baths

1,747 Sq.Ft.

$899,000

MLS#: 1000309

Welcome to this beautifully designed 4-bedroom, 3-bath home with thoughtfully crafted living space, complete with a spacious 2-car garage. Step inside to discover the main living area, creating an open and inviting atmosphere. The kitchen is a chef's dream, featuring quartz countertops throughout, under-cabinet lighting, a stainless steel vent hood, and a suite of professional Frigidaire Series stainless steel appliances.

Elegant Medallion hardwood flooring flows through the main living spaces and into the master bedroom, which is further enhanced by detailed crown molding. Each bathroom is finished with timeless tile, blending function and style effortlessly. Just off the screened porch, a poured concrete pad with a gas stub-out is ready for your grill, perfect for outdoor entertaining. Every detail in this home has been considered for both comfort and sophistication.
Watersound Origins offers more than just a beautiful home; it provides a lifestyle. With a 6-month minimum lease policy, the community welcomes both primary and second homeowners, making it an ideal location for year-round living or seasonal escapes. This community is ideally situated near the stunning beaches of 30A, as well as shopping, dining, and entertainment options. The Village Commons serves as a hub for residents, featuring a resort-style swimming pool, fitness center, sports courts and Origins Golf Club.  The community also boasts parks and walking trails. Experience a lifestyle that combines modern convenience with an appreciation for nature. This home at Watersound Origins is truly a rare find.
#982243

Inlet Beach

76 Jack Knife Drive

4 Beds

3 Baths

2,203 Sq.Ft.

$899,000

MLS#: 982243

Best priced 3BR on the east end of 30A!!!  Fantastic rental potential!! Projections over $80k!! Beautifully decorated, overlooking 30A with updated appliances. Located at the Village of South Walton between Rosemary and Alys Beach. Park the car and walk to all of the great restaurants, shops and the beautiful white sands and emerald waters. Great for a personal residence, second home or investment property. The perfect place to enjoy the 30A lifestyle!! Sold fully furnished and rental ready.
#999237

Inlet Beach

10343 E Co Highway 30A UNIT 328

3 Beds

2 Baths

1,126 Sq.Ft.

$895,000

MLS#: 999237

Backing up to a nature preserve for added privacy and including a 6-seater golf cart, this exquisitely decorated and updated 3-bedroom, 2.5-bath townhome offers the perfect blend of privacy, comfort, and investment potential along 30A. Ideally suited as a turnkey rental or a charming second home, this property truly stands out within the community. As the largest floorpan in the community, the A-unit provides exceptional space and functionality, highlighted by a 2-car garage. Inside, the home showcases beautiful hardwood flooring, luxury white cabinetry, and granite countertops, all thoughtfully selected to create a timeless and elevated aesthetic. Custom shiplap accents and detailed trim work add warmth and character, setting this residence apart from others in the neighborhood. Custom shiplap accents and detailed trim work add warmth and character, setting this residence apart from others in the neighborhood. The custom-built bunk room offers a fun and functional space for children or guests, enhancing both livability and rental appeal.
Just a short stroll or golf cart ride to the Hub and all that 30A has to offer, this is an excellent opportunity to own a well-appointed and ideally located townhome in Prominence.
#999236

Inlet Beach

117 W Pine Lands Loop A

3 Beds

2 Baths

1,747 Sq.Ft.

$940,000

MLS#: 999236

Welcome to The Pointe Unit 335! This exceptional property is located directly on 30A & a two-minute walk from Rosemary Beach. With rental projections at $71,980 and cash on cash return projections at 5.3% per year, this luxury unit is designed perfectly for rental income. Situated pool-side, the unit offers two separate balconies and custom built-in bunk beds in the hallway. Spend quality time at the high-end amenities which include a resort-style pool/spa, fitness center, rooftop deck and on-site restaurant. Inside, the unit has been meticulously designed with a coastal feel and comes fully-furnished. The primary bedroom is a dreamy escape with its private balcony and large primary bathroom. The living room is so welcoming with its large sliding glass doors and natural light pouring in. The chef's kitchen showcases plenty of cabinet space and high-end appliances. The guest bedroom has been beautifully designed with extra storage and a spacious full bathroom. With low HOA dues, the return on investment for this rental property will be running at peak performance. Explore this sanctuary designed for unforgettable memories on 30A!
#981803

Inlet Beach

10941 E County Hwy 30A Unit 335

2 Beds

2 Baths

1,220 Sq.Ft.

$725,000

MLS#: 981803

Being sold Furnished with Golf Cart Included! Welcome to 370 Grande Pointe, an idyllic holiday home offering beautifully renovated interiors across three distinct levels totaling over 2,200 square feet of thoughtfully designed living space.

From the moment you arrive, the stately paver driveway framed by lush coastal landscaping sets the tone for this charming residence, highlighted by its freshly painted façade and inviting curb appeal. Inside, light-filled interiors and rich hardwood flooring create a warm and sophisticated atmosphere. The first floor living area provides exceptional flexibility, ideal for bunk space, a media room, or a potential fourth bedroom. Step outside to the expanded patio deck overlooking the serene preserve, where you can enjoy the ever-changing palette of the Emerald Coast's legendary sunsets. An outdoor shower is available and this level also features a private guest suite, full bath, and garage.

The second floor serves as the heart of the home, showcasing a newly refreshed gourmet kitchen complete with custom cabinetry, a luxury appliance package with gas range, and a spacious center island with integrated seating. The adjacent main living area is bright and airy, framed by a stunning wall of windows that captures the surrounding topography.  An additional guest suite and a beautifully renovated bath featuring a wet room design with floor-to-ceiling tile, freestanding tub, and rain shower complete this level.

Encompassing the entire top floor, the luxurious primary suite offers a true private retreat. The suite boasts custom tray ceilings, a dedicated office nook, and a spa-inspired en-suite bath with dual vanities, walk-in shower, and enclosed water closet.

Nestled between Lake Powell and the Gulf of Mexico, Grande Pointe is a tranquil coastal sanctuary. Residents enjoy access to a community pool, pavilion, and dock overlooking the rare coastal dune lake, Lake Powell, along with the convenience of a short walk to both the beach and lake. The community's prime location near the 30A Avenue commercial district, complete with an underground pedestrian tunnel to the 30A corridor, places acclaimed dining, shopping, and entertainment just moments away.

With projected annual rental income exceeding $55,000, this property presents an exceptional opportunity for investors or those seeking a second home or primary coastal residence.

Schedule your private showing today and begin envisioning the coastal lifestyle you deserve.
#998917

Inlet Beach

370 Grande Pointe Circle

3 Beds

3 Baths

2,244 Sq.Ft.

$880,000

MLS#: 998917

Welcome to 26 Milestone Dr Unit B, a fully furnished coastal retreat in the sought-after Prominence community on 30A. Ideally positioned between Alys Beach and Seagrove, this townhome offers strong rental potential and effortless access to the best of 30A. The open-concept layout features spacious living and dining areas, a well-appointed kitchen, and generous bedrooms designed for comfort. Included golf cart makes trips to the beach and nearby amenities easy. Enjoy close proximity to The Big Chill, plus resort-style pools, fitness paths, and community green spaces. A turnkey opportunity for a second home or income-producing property in one of 30A's most desirable neighborhoods.
#998637

Inlet Beach

26 E Milestone Drive UNIT B

3 Beds

2 Baths

1,677 Sq.Ft.

$945,000

MLS#: 998637

Turnkey Corner Unit | Furnished + Golf Cart Included | Prominence | Inlet Beach | 30A
This rare corner end unit in Prominence offers one of the most private and light-filled settings in the community, with oversized windows on two sides flooding every level with natural light and Gulf breezes - a distinct advantage few properties in the neighborhood can match.
On the main level, the open-concept living, dining, and kitchen areas flow seamlessly together, anchored by a massive granite island, full kitchen with stainless steel appliances, and direct access to a private patio. Upstairs, warm hardwood floors carry you into a spacious primary suite bathed in natural light, while two additional guest bedrooms with bunk beds and a full guest bath provide comfortable accommodations for family and friends.
This property comes fully furnished and includes a golf cart -- making it completely turnkey for personal use or short-term rental on day one. Everything is in place for the 30A lifestyle from the moment you arrive.
Step outside and you are at the center of it all. The white sand beaches of Inlet Beach and 30A are minutes away, with Deer Lake State Park offering its own stunning coastal beach access alongside rare coastal dune lake scenery. The Big Chill sits just across the street for upscale dining and shopping, while Rosemary Beach, Alys Beach, WaterSound Town Center, and Seaside are all easily accessible by bike or golf cart along Scenic 30A.
Your own private beach home close to WaterSound, Alys Beach, Rosemary Beach, and Seaside -- this turnkey Prominence property delivers the full coastal Florida experience in one of the most sought-after corridors along the Emerald Coast.
3 BR | 2 BA | Corner Lot | Turnkey | Furnished | Golf Cart | STR | Prominence | Inlet Beach | 30A | Rosemary Beach | Alys Beach | WaterSound | Deer Lake State Park | Emerald Coast

105 York Lane B

Message successfully sent.

 - property

Send a message

Message successfully sent.

Reason for contacting?

Sign In Sign Out

Virtual Assistant

Would you like to take the next step with this property? We can help you schedule a showing or virtual tour, or send you more details.

Yes, I would like more information.

Thank You for Your Reply, One of Our Agents will contact you as soon as possible

No, maybe later.

Thank you, you can always contact me via email, phone number or through the contact form.

Realhub AI

Lucy - Your AI-Powered Realtor

Update Your Temporary Password

Personalize your search

Enter your email and we'll notify you immediately when new listings match what you're looking for.

or enter email address

Already have an account ? Login here

Continue your home search

Already have an account ? Login here

We use cookies

We use cookies primarily for analytics to enhance your experience. By accepting, you agree to our use of these cookies. You can manage your preferences or learn more about our cookies policy.